REQUEST A TOUR If you would like to see this home without being there in person, select the "Virtual Tour" option and your agent will contact you to discuss available opportunities.
In-PersonVirtual Tour

Listed by Jae G Cho • MetroHomes Realty, LLC
$ 140,000
0.42 Acres Lot
$ 140,000
0.42 Acres Lot
Key Details
Property Type Commercial
Sub Type Land for Commercial Use
Listing Status Active
Purchase Type For Rent
MLS Listing ID VALO2092944
Lot Size 0.420 Acres
Acres 0.42
Lot Dimensions 0.00 x 0.00
Property Sub-Type Land for Commercial Use
Source BRIGHT
Property Description
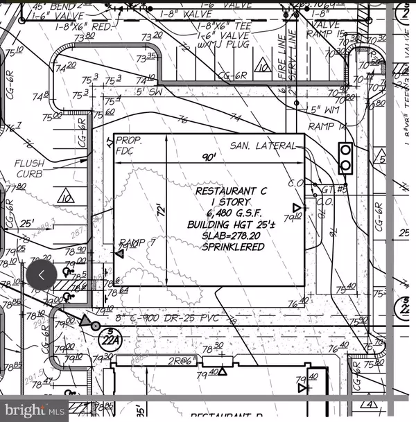
Ground Lease. This pad site is finished and ready to build with water and sewer already in place. It's already permitted to build 6480 to 7300 sf dwelling. It's waiting for a medical Use, restaurants or Auto parts store. It is the perfect site for an operation like dental care, medical lab, Pizza parlor, Kabob restaurants, Sports Bar, or a Korean BBQ. It's in the same shopping center as Sheetz gas station, Burger King, Texas Roadside Steak House, Sherwin Williams paint supply, and other retail shops.
Location
State VA
County Loudoun
Zoning PDCCCC
Interior
Hot Water None
Heating None
Cooling None
Flooring Other
Heat Source None
Exterior
Garage Spaces 50.0
Water Access N
Roof Type Other
Accessibility None
Total Parking Spaces 50
Garage N
Building
Sewer Public Sewer
Water Public
New Construction Y
Schools
School District Loudoun County Public Schools
Others
Tax ID 056177121000
Ownership Other


"My job is to find and attract mastery-based agents to the office, protect the culture, and make sure everyone is happy! "







